Страница 1 из 5 12345 ПоследняяПоследняя
Показано с 1 по 15 из 68

Тема: Индезит В 16NF.025 утечка

Комбинированный просмотр

  1. #1
    Заблокирован
    Регистрация
    11.02.2010
    Адрес
    Краснодар
    Сообщений
    993
    Репутация
    105

    Индезит В 16NF.025 утечка

    Боремся с данным холодильником второй год, он 2007 г.в. Долгое время работала только МК(ноу фрос), а в ХК морозили бутылки и охлаждали продукты. Ну я думал засор, заправил, через 7 месяцев опять тоже самое, дозаправил, некогда было, вчера поехал дал давление 5 ат., за ночь упала до 4-х, всё везде пронюхал, но видимо в запенке, испаритель пока не хотят заказчики ставить. Если кто знает где у него находится локринговое соединение- переход с алюминия 8-ки на 6-ку в запенке? Думаю что это там на 90%.

  2. Каталог мастерских
    работает с 2005 года
    Если у Вас сломался холодильник, загляните в наш каталог мастерских. В нем представлена актуальная информация о сервисных центрах, мастерских и частных мастерах Вашего города.
    Если же Вы профессиональный холодильщик или представитель сопутствующей профессии, имеет смысл зарегистрироваться на форуме, чтобы получить возможность общаться с коллегами. Кстати, зарегистрированным пользователям этот информационный блок не показывается.
  3. #2
    Холодильщик
    Регистрация
    09.12.2009
    Адрес
    Россия. Астрахань Звёздная 57
    Сообщений
    2,771
    Репутация
    1974
    Митяй
    Не всегда в соединении. Бывает в "пластине змеевика" в плачке
    Фирма работает в области холода более 20 лет

  4. #3
    Холодильщик
    Регистрация
    30.08.2010
    Адрес
    Пермь
    Сообщений
    78
    Репутация
    2591
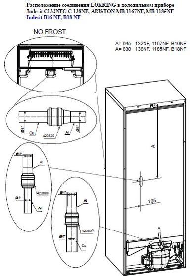
    Митяй, локринг который тебя интересует находится вот здесь: если смотреть со спины 65см.-сверху и 10,5см.-справа. Но утечка по нему маловероятна, скорее всего на выходе с плачки (во влажной зоне) или по отсосу.

  5. #4
    Холодильщик
    Регистрация
    29.11.2007
    Адрес
    Санкт-Петербург
    Сообщений
    1,213
    Репутация
    3013
    Митяй у меня был на таком холодосе выхд в локринге в правом верхнем углу.Примерно 15см от верха и 15-20см от правого борта если смотреть сзади на холодос.
    Вацапьте и Вайберите по Тел +7(921) 956-26-05 http://remontholodilnikov.spb.ru/

  6. #5
    Заблокирован
    Регистрация
    11.02.2010
    Адрес
    Краснодар
    Сообщений
    993
    Репутация
    105
    Цитата Сообщение от dolphin Посмотреть сообщение
    Митяй, локринг который тебя интересует находится вот здесь: если смотреть со спины 65см.-сверху и 10,5см.-справа. Но утечка по нему маловероятна, скорее всего на выходе с плачки (во влажной зоне) или по отсосу.
    Цитата Сообщение от Александр Геннадьевич Посмотреть сообщение
    Митяй у меня был на таком холодосе выхд в локринге в правом верхнем углу.Примерно 15см от верха и 15-20см от правого борта если смотреть сзади на холодос.
    Так у них что разные конструкторские решения по локрингам???

  7. #6
    Холодильщик
    Регистрация
    30.08.2010
    Адрес
    Пермь
    Сообщений
    78
    Репутация
    2591
    Этот локринг точно есть, сам вскрывал, может позже стали ещё один на выходе ставить
    Изображения

  8. #7
    Заблокирован
    Регистрация
    11.02.2010
    Адрес
    Краснодар
    Сообщений
    993
    Репутация
    105
    dolphin, Огромное СПАСИБО!!! Ты настоящий ДРУГ!!!

  9. #8
    Заблокирован
    Регистрация
    11.02.2010
    Адрес
    Краснодар
    Сообщений
    993
    Репутация
    105
    Цитата Сообщение от Александр Геннадьевич Посмотреть сообщение
    Митяй у меня был на таком холодосе выхд в локринге в правом верхнем углу.Примерно 15см от верха и 15-20см от правого борта если смотреть сзади на холодос.
    Вот и мне думается, что в локринге, т.к. время утечки после дозаправок одинаково и давление за ночь упало до 4 ат. а потом тормознулось с выходом хладагента. Хотя лучше по моему заменить на внешний испаритель в ХК.

  10. #9
    Заблокирован
    Регистрация
    11.02.2010
    Адрес
    Краснодар
    Сообщений
    993
    Репутация
    105
    Ещё один БХП такой модели и опять видимо утечка. У кого есть какие наработки по поводу этой модели и где в основном утечка происходит - в запенке на локринге или ещё где было?

  11. #10
    Заблокирован
    Регистрация
    11.02.2010
    Адрес
    Краснодар
    Сообщений
    993
    Репутация
    105
    Цитата Сообщение от karelinikola Посмотреть сообщение
    Митяй, Вчера делал ИНДЕЗИТ марку не смотрел,на всасывающей аллюминевой трубке одет кембрик и на нем навита кт. вот подней и была коррозия.
    У меня сегодня Стинол с таким диагнозом доработался до смерти м-к, но было масло на всасывающей трубке. Но завтра будем с Индезитом разбираться, но по осмотру под кембриком вроде сухо...

  12. #11
    Холодильщик Аватар для вьюга
    Регистрация
    11.03.2008
    Адрес
    Краснодарский кр
    Сообщений
    2,532
    Репутация
    2997
    Цитата Сообщение от Митяй Посмотреть сообщение
    ... Но завтра будем с Индезитом разбираться, но по осмотру под кембриком вроде сухо...
    Встречал и с сухой утечкой, масло стекает по нижней части трубки, а коррозия напротив. В лучшем случае легкий белый налет, пушистый внешне и немного, но течеискатель разрывается от визга. А вызвала коррозию не медь, а влага затекающая в головину туго стянутого капилляркой кембрика.

  13. #12
    Заблокирован
    Регистрация
    11.02.2010
    Адрес
    Краснодар
    Сообщений
    993
    Репутация
    105
    Цитата Сообщение от вьюга Посмотреть сообщение
    Встречал и с сухой утечкой, масло стекает по нижней части трубки, а коррозия напротив. В лучшем случае легкий белый налет, пушистый внешне и немного, но течеискатель разрывается от визга. А вызвала коррозию не медь, а влага затекающая в головину туго стянутого капилляркой кембрика.
    По словам заказчика, намерзание в ХК, происходило уже давно, видимо утечка происходила медленно. Как часто происходит утечка в запененном локринге, если есть у кого информация?

  14. #13
    Холодильщик
    Регистрация
    30.08.2010
    Адрес
    Пермь
    Сообщений
    78
    Репутация
    2591
    Цитата Сообщение от Митяй Посмотреть сообщение
    Как часто происходит утечка в запененном локринге, если есть у кого информация?
    По моим наблюдениям процентах в 15- 20ти из всех утечек в запенке, если речь идёт о липецкой технике

  15. #14
    Холодильщик
    Регистрация
    09.12.2009
    Адрес
    Россия. Астрахань Звёздная 57
    Сообщений
    2,771
    Репутация
    1974

    Индезит В 16NF.025 утечка

    Митяй!!
    На этой недели привезли Индезит. Ремонтировался 5 раз. Клиент просто устал.
    Утечка в запенке в месте изгиба трубки при перезоде в запенку. Опледелили после вытаскивания термостата и проверки утечки в этом отверстии. Фото скнул.УТЕЧКА.jpgУТЕЧКА.jpg
    Фирма работает в области холода более 20 лет

  16. #15
    Заблокирован
    Регистрация
    11.02.2010
    Адрес
    Краснодар
    Сообщений
    993
    Репутация
    105
    [QUOTE=владимир алексеевич;27162]Митяй!!
    На этой недели привезли Индезит. Ремонтировался 5 раз. Клиент просто устал.
    Утечка в запенке в месте изгиба трубки при перезоде в запенку. Опледелили после вытаскивания термостата и проверки утечки в этом отверстии.
    При переходе в запенку откуда? Из МК в пену или ещё где? А как локринг запененный?

Информация о теме

Пользователи, просматривающие эту тему

Эту тему просматривают: 1 (пользователей: 0 , гостей: 1)

Похожие темы

  1. Индезит С 236NF G.016 -- не запускается копрессор МК
    от n2009 в разделе Бытовые холодильники
    Ответов: 20
    Последнее сообщение: 25.12.2009, 18:06
  2. индезит 138NF, забит капилляр
    от geo в разделе Бытовые холодильники
    Ответов: 14
    Последнее сообщение: 19.05.2009, 14:39
  3. Подбор компрессора для холодильника Индезит
    от doyce в разделе Бытовые холодильники
    Ответов: 11
    Последнее сообщение: 15.03.2009, 09:12
  4. Индезит BEAA 35 PGF -- компрессор не включается
    от Boris-1230 в разделе Бытовые холодильники
    Ответов: 1
    Последнее сообщение: 02.12.2008, 16:45
  5. Электронный таймер для хол-ка ИНДЕЗИТ Липецкого пр-ва
    от КУБ в разделе Бытовые холодильники
    Ответов: 3
    Последнее сообщение: 16.10.2007, 23:54

Ваши права

  • Вы не можете создавать новые темы
  • Вы не можете отвечать в темах
  • Вы не можете прикреплять вложения
  • Вы не можете редактировать свои сообщения
  •  
Мы используем файлы cookie, чтобы улучшить работу сайта.